106 Tobacco Warehouse, Stanley Dock, Regent Road, Liverpool, L3 0BB

106 Tobacco Warehouse, Stanley Dock, Regent Road, Liverpool, L3 0BB
Price

£1,425

Property Type

Duplex

Bedrooms

2

Bathrooms

2

The Property
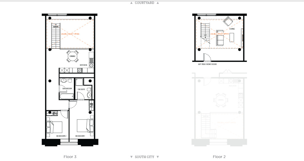
Tobacco Warehouse is located 1 mile north of Liverpool City Centre and perfectly positioned to benefit from the ongoing development of Liverpool Waters. These duplex apartments are extremely unique, offering modern living bursting with character. There is private underground parking available upon request, along with a concierge service at the building and a professional building management team available. 

Living Room
Upon entering the property, you are welcomed into the lower-floor living area, featuring large warehouse-style windows that flood the space with natural light. A set of internal stairs leads up to the upper level, creating a distinctive duplex layout that enhances the sense of space and separation.

Kitchen / Diner
Upstairs, you'll find a bright and spacious open-plan kitchen and dining area, boasting sleek, modern décor and high-quality finishes. Perfect for entertaining or everyday living, the space offers both style and practicality. The kitchen is fully integrated with tile splashbacks, an integrated oven, induction hob, dishwasher, fridge/freezer, and washer/dryer. 

Family Bathroom
The bathroom is fully tiled in grey and white mosaic, giving it a clean and modern look. It includes a shower over the bath and the patterned floor tiles add a stylish touch.

Two Double Bedrooms
Located off the main corridor on the upper floor are two generously sized double bedrooms, both designed with comfort and natural light in mind — ideal for couples, sharers, or those needing a home office or guest room.

Master Bedroom En-Suite
The master bedroom benefits from a private en-suite shower room, featuring a modern three-piece suite with an enclosed shower.

General
EPC Rating: B
Council Tax Band: D
Local Authority: Liverpool City Council
Furniture: Furnished
Available: ASAP
Parking: Available for an extra fee of £75 PCM

Utilities/Bills are separate from the rental amount, and include Council Tax, Water and Electricity. There is no gas to this property.
 
No 5-week deposit required!*
Find out how to rent this property deposit-free with Reposit - https://reposit.co.uk/tenants/
*Tenants will remain liable to pay any damages, cleaning, and arrears at the end of the tenancy

Features:

  • Concierge service and building management
  • Secure underground parking available for an extra £75 pcm
  • Furnished
  • Available ASAP!
  • Unique duplex apartments
  • 2 double bedrooms
  • 2 bathrooms
  • *5 week security deposit not required*